
작도시간이 또 넘어갔다.
주차장 그리는데 오래 걸림.
강의영상에서 알려준 방법 쓰려다가 오히려 더 걸림..
익숙지 않아서 그렇겠지만, 그냥 하던대로 할까.

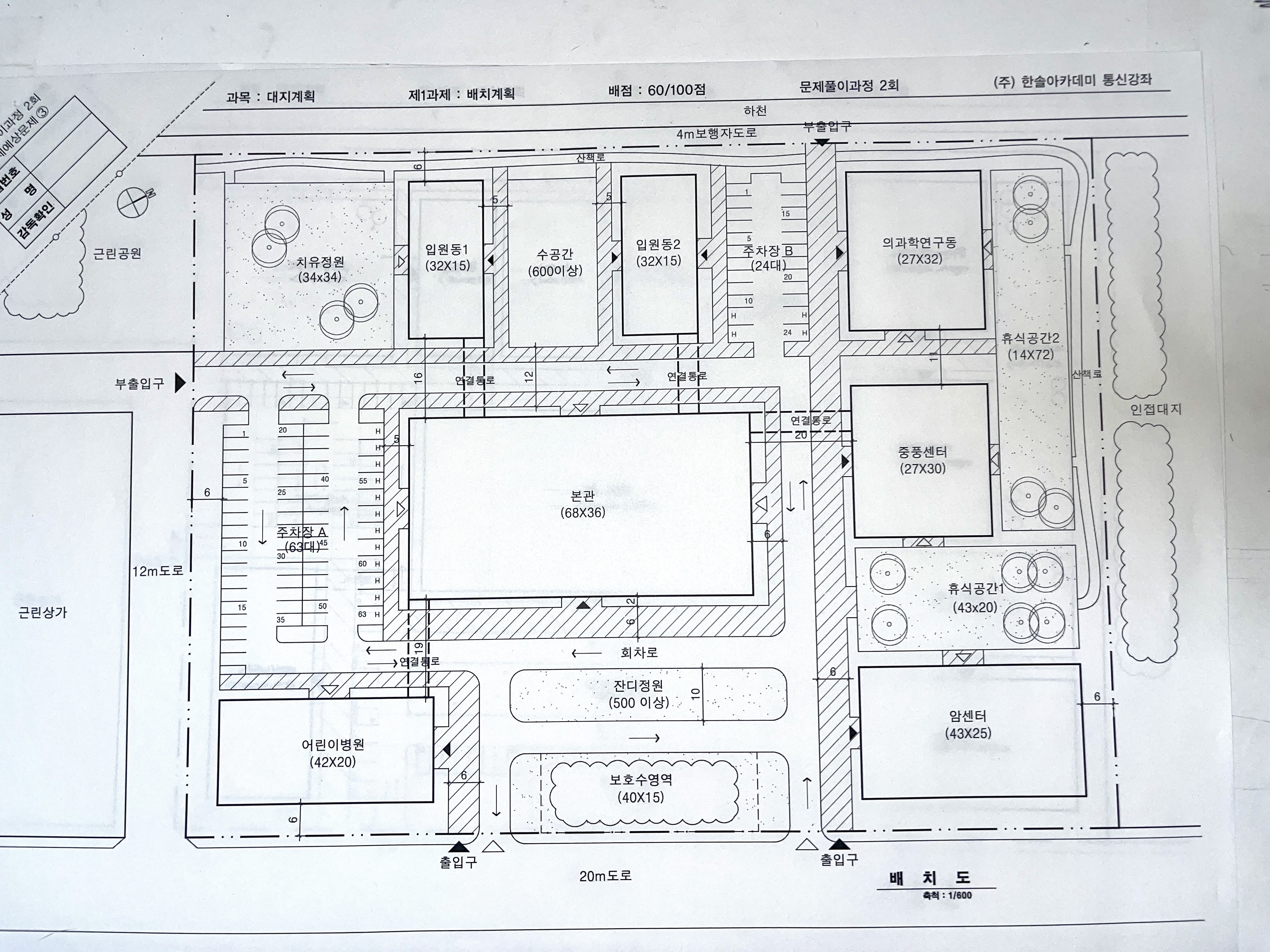
모범답안

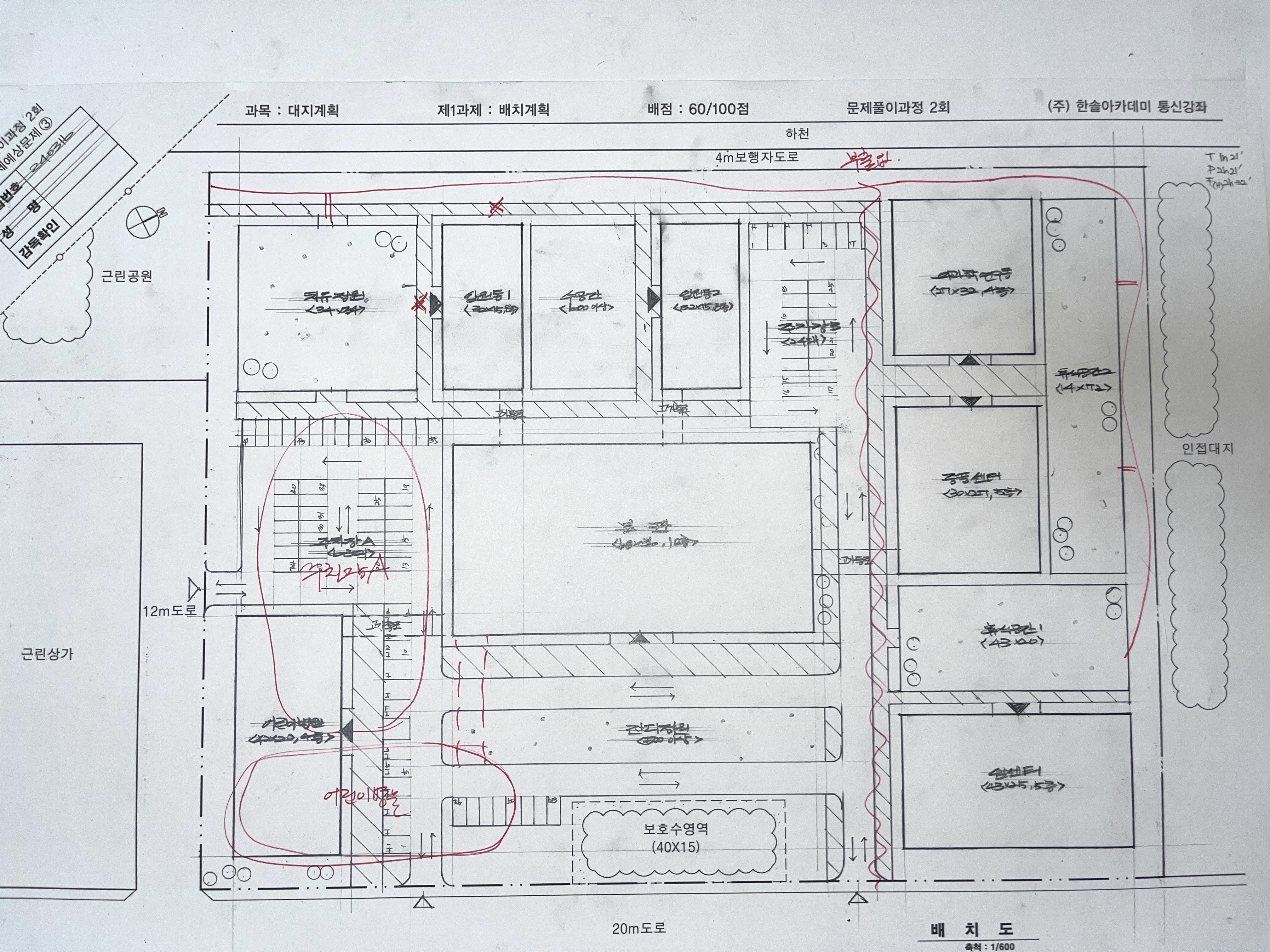
산책로 표현이 틀렸다.
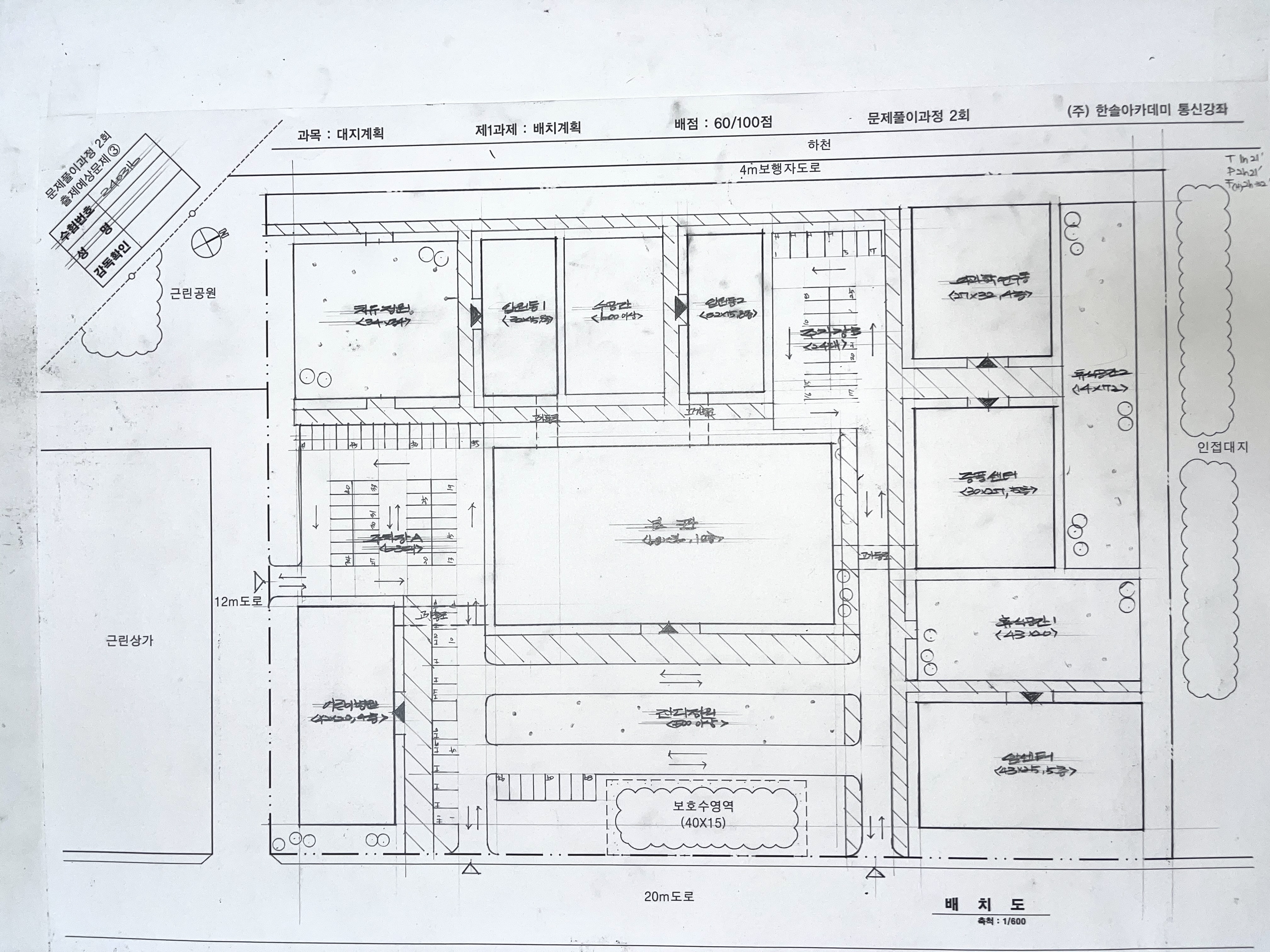
대지 안의 공지 이격 하고 그려야 하나 했는데, 그 안으로 그려도 되는 거였나보다.
어린이병원을 가로로 배치했으면 주차장이 한 덩어리로 그려졌을 건데, 아쉽.
보행로 연결하는 것도 빼먹었다. 이런 큰 걸 놓치다니.
지문에 중요한거 표시하는게 중요하다..
시간이 많이 남으면 보행로 해치표현을 좀 더 빽빽하게 하면 좋겠다.

주차장을 한 공간으로 하도록 하는거 역시 짚어주심.
산책로 부분을 질문해서 답변 받음.
'건축사시험' 카테고리의 다른 글
건축사 시험공부-1교시 문제풀이 대지분석 03 막다른 도로 너비 폭 (0) | 2024.07.16 |
---|---|
건축사 시험공부-1교시 문제풀이 대지분석 2024-1 기출 (0) | 2024.07.03 |
건축사 시험공부-1교시 문제풀이 대지분석02 (0) | 2024.06.18 |
건축사 시험공부-1교시 문제풀이 대지분석01 (0) | 2024.06.11 |
건축사 시험 공부-1교시 문제풀이-배치계획01 (0) | 2024.06.10 |