00대학교 남자기숙사 평면설계
개인작도

트레이싱지에 계획 후 작도했는데, 트레이싱지애서 한거랑 다르게 그려진 걸 저만큼 그린 후 알아서 중도 포기. 화난다
모범답안


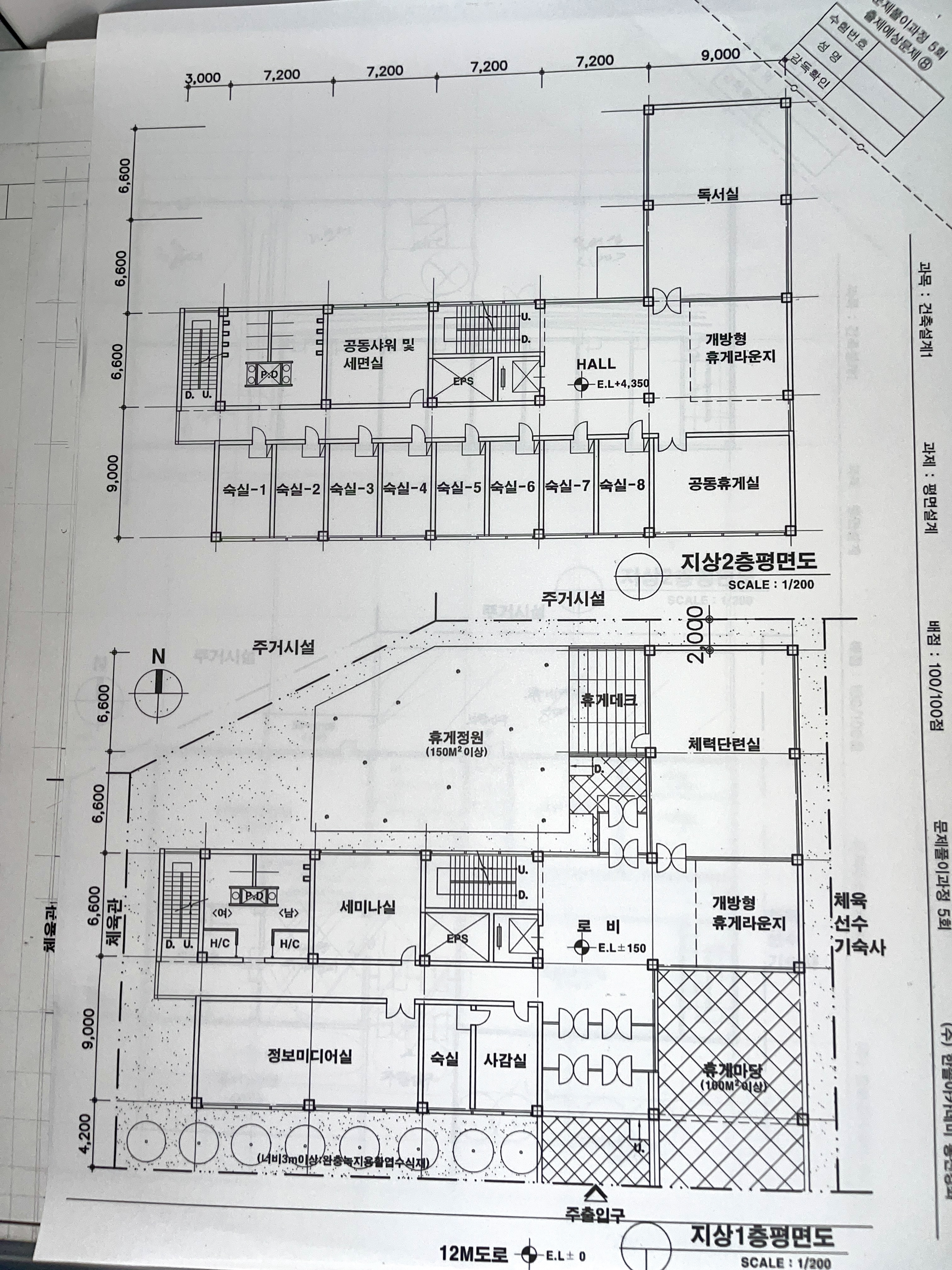
내가 그린거랑 1층 계획에서 좌우반전 됐다.
영 이해가 안 갔는데, 지문에서 “도로 반대편 옥외 주차장 활용”이라는 문구가 있어 주차장 건너편을 공지로 두는 것 같다고 추측해본다.
그리고 주출입구 및 휴게마당 제외 건문 전면 활엽수 일렬식재 조건이 있기 때문에.
피드백

고지전 이야기를 써주시며 포기하지 말라는 선생님. ㅎㅎ 열심히 해여겟다…
건축가는 해내야 한다…

포스트잇 내용에서 오른쪽 아래 분홍색 존에서 인접대지로 화살표 무슨 뜻인지 모르겠다. 현황에 저런거 없는디.
-주거시설에 대응하여 정원을두고 이격, 독서실과 체력단련실을 정원쪽으로 열리도록 하는건 오케.
-부계단이 숙실 쪽 아랫칸으로 와도 될거같다는 생각 잠깐 했는데, 화장실, 코어와 같은 파트에 두고 남측 피난 공지 열어주는거라 옳은 답인 것 같아 납득.
-주출입~로비~부출입에서 이어지는 휴게정원 동선 공간 깔끔
'건축사시험' 카테고리의 다른 글
건축사 시험공부-1교시 배치계획 문제풀이 실전종합모의고사 01 (0) | 2024.08.19 |
---|---|
건축사 시험공부-1교시 대지분석 문제풀이 실전종합모의고사 02 (0) | 2024.08.18 |
건축사 시험공부-1교시 배치계획 문제풀이 (0) | 2024.08.14 |
건축사 시험공부-1교시 대지분석 문제풀이 (0) | 2024.08.06 |
건축사 시험공부-1교시 분석조닝 문제풀이 (0) | 2024.08.04 |