먼저 1교시.
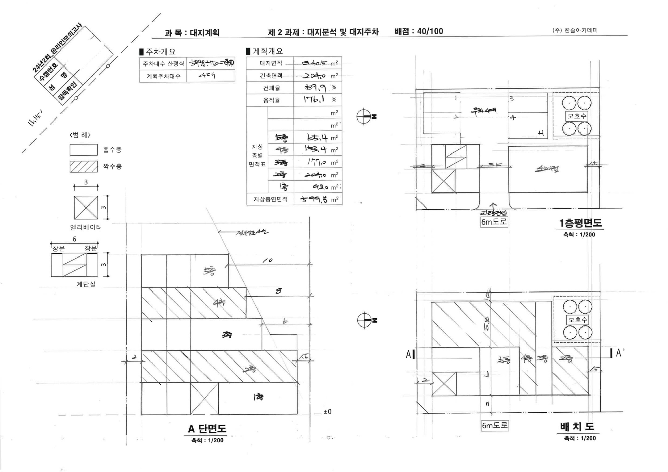
배치계획은 망해버려서 안 올리고 분석조닝만.


소규모 주차에서 도로를 이용해서 주차하는게 요즘 많이 보이는 것 같다.
걍 틀려버림…..ㅠㅠㅠ
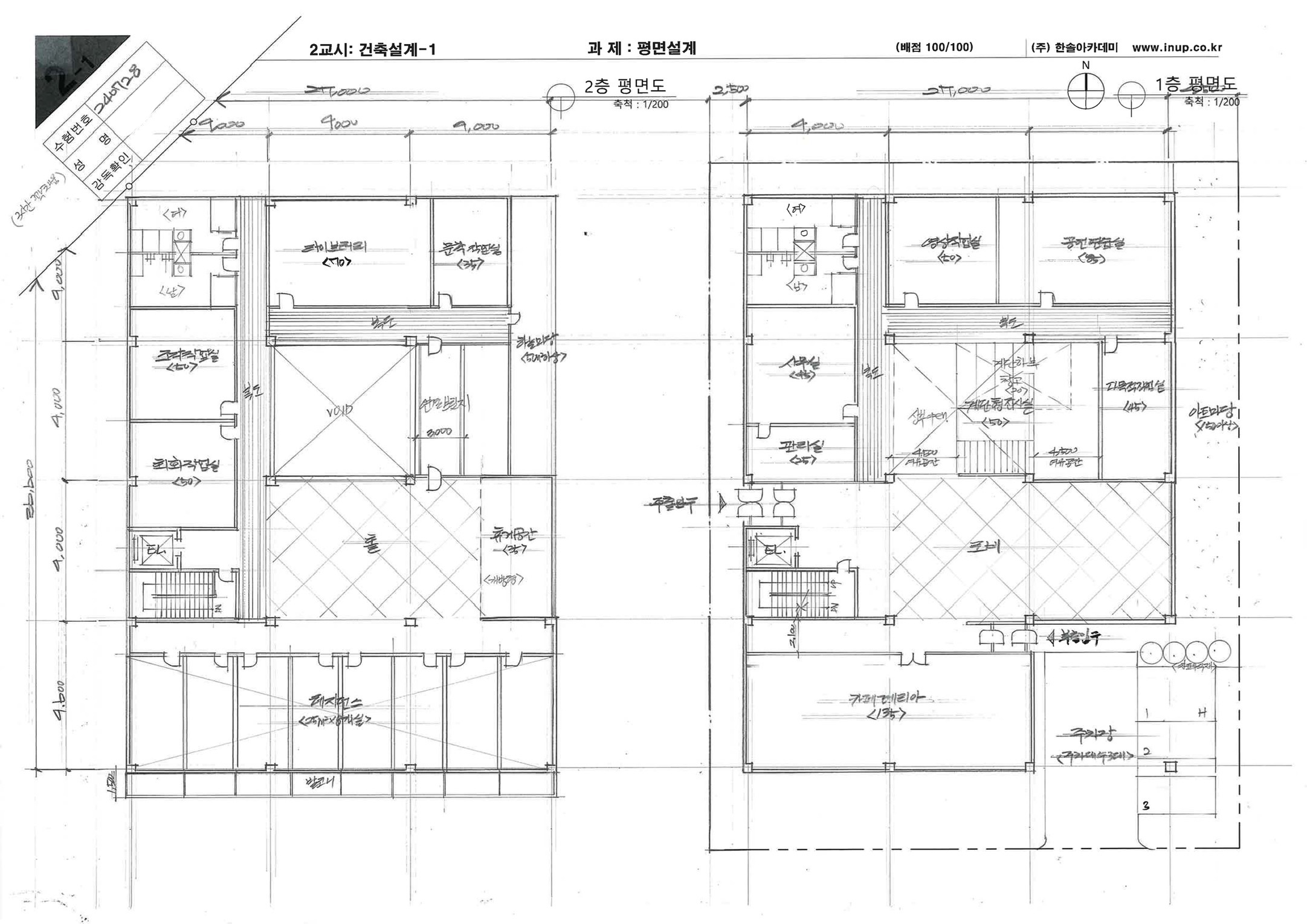
2교시 평면은 나름 열심히 했는데,
아트마당이랑 계단식 서재, 다목적실 이쪽이 잘 해결이 안 됐다.


자꾸 전화하라고 하시는 선샌님….
끼융….
전호ㅓ하면 진짜 열심히 해야할 것 같자나요…
는 열심히 하고 있는거긴 한데. ..ㅠ
그래도 열심히 봐주시니 더 열시미 하고깊긴 함.
뮨제 다시 안풀었는데 전화해도 되나 고민중이다.
'건축사시험' 카테고리의 다른 글
건축사 시험공부-1교시 대지분석 문제풀이 (0) | 2024.08.06 |
---|---|
건축사 시험공부-1교시 분석조닝 문제풀이 (0) | 2024.08.04 |
건축사 시험-2교시 2024-1 기출문제 풀이 (0) | 2024.08.01 |
건축사 시험공부-2교시 문제풀이 07 (0) | 2024.07.31 |
건축사 시험공부-1교시 문제풀이 배치계획 03 (0) | 2024.07.17 |