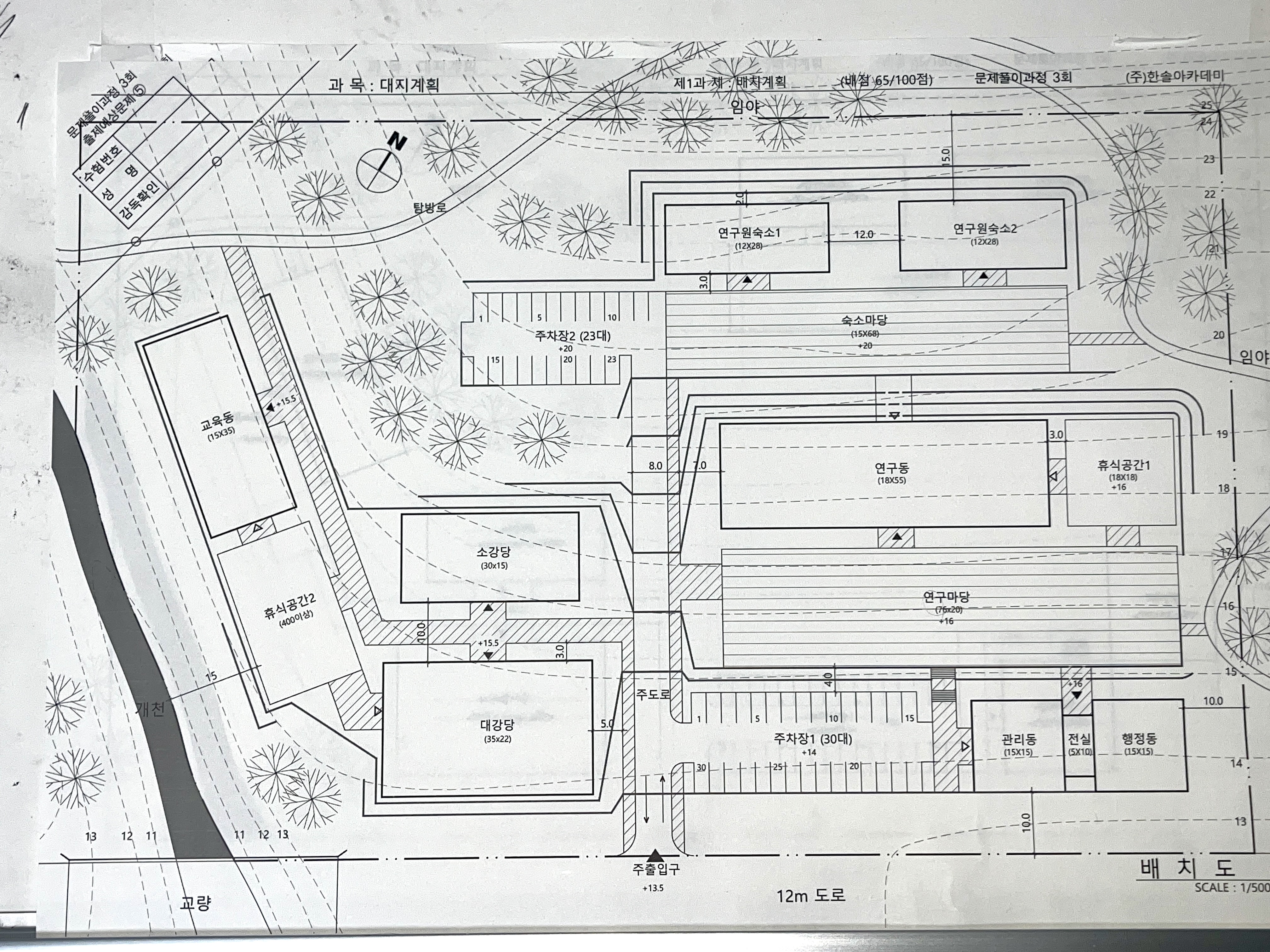
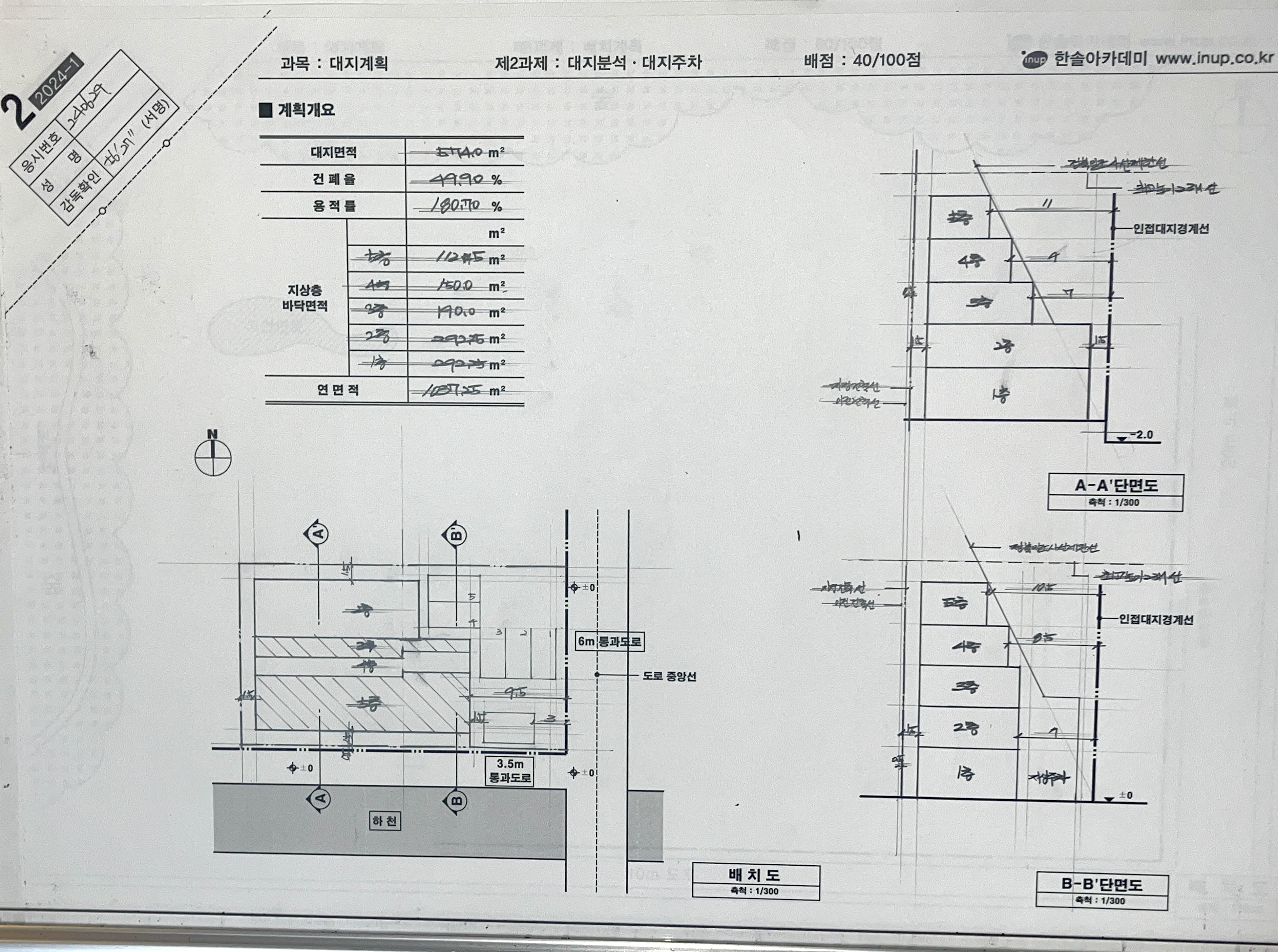
지형 계획하는게 나왔다. 으 싫음.

어제 트레싱 계획까지 했다가 작도 귀찮아서 포기하고
오늘 다시 이어서 그림.
모범답안 조금 슬쩍 봤는디 우측 연구시설이랑 관리동이 영 안나와서 포기.
관리동이 스킵플오어로 계획인데, 뭔가 대지레벨이 세로로 올라 가니까 가로로 배치하는 건 생각을 못했다.


위에 주차장은 그릴 수 있었는데 연구동 쪽 포기하면서 놓쳤다.
아휴. 걱정이네.
지형계획은 시간이 더 들어서 골치다.

그리다 만거 그냥 올렸더니 중도 포기하지 말고 배치는 끝까지 해내야 한다는 선생님 말씀.
하지만 너무 힘든걸요..😭
그래도 담부턴 작도 포기하지 말도록 하자!
'건축사시험' 카테고리의 다른 글
건축사 시험-2교시 2024-1 기출문제 풀이 (0) | 2024.08.01 |
---|---|
건축사 시험공부-2교시 문제풀이 07 (0) | 2024.07.31 |
건축사 시험공부-1교시 문제풀이 대지분석 03 막다른 도로 너비 폭 (0) | 2024.07.16 |
건축사 시험공부-1교시 문제풀이 대지분석 2024-1 기출 (0) | 2024.07.03 |
건축사 시험공부-1교시 문제풀이 대지분석02 (0) | 2024.06.18 |